Apollo Flight Journal logo
Index
Journal Home Page

Apollo 15

Flight Plan - Index

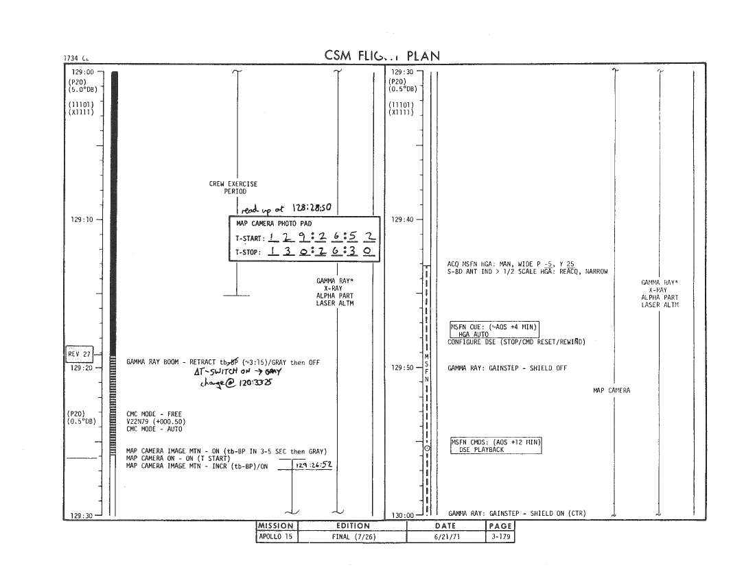
The Flight Plan presented here is not identical to that used on board but there are very few differences.

All hand-written additions in this copy of the Flight Plan were made by David Woods during the compilation of this Journal and largely represent the updates read to the crew during the flight.

Introductory Pages

Chapter 1 - Flight Plan Notes

Chapter 2 - Charts and Tables

Chapter 3

Earth Orbit Phase

Translunar Injection

Translunar Coast Phase

Lunar Orbit/Descent Phase

Lunar Orbit/Surface Phase

Rendezvous/LM Jettison Phase

Post Rendezvous Science Phase

Trans-Earth Injection

CSM EVA

Entry Interface

Chapter 4 - Consumables Analysis

Chapter 5 - Abbreviated Timeline

Chapter 6 - Alternate Mission Timelines

Copyright © 2001 by W. David Woods and Frank O'Brien. All rights reserved.
Index
Journal Home Page
Last updated 2017-02-17